moderne und neuwertige Lagerhalle mit Bürogebäude.
Eckdaten
- Art Lagerhalle
- Lage 66954 Pirmasens
- Kaufpreis 770.000,00 €
- Grundstück ca. 2.769 m²
- Baujahr 2022
- Gesamtfläche ca. 770 m²
- Nutzfläche ca. 196 m²
- Heizungsart Wärmepumpe
- Stellplatztyp Aussenstellplatz
- Bezugstermin sofort
- Zustand Neuwertig
- Immobilien-ID 5342
- Provision 3,57 % inkl. MwSt.
Immobilie
Das angebotene Objekt liegt in einem attraktiven Gewerbegebiet am Stadtrand von Pirmasens. Der Standort verfügt über eine sehr gute Anbindung an die L 600 und die nahegelegene Autobahnauffahrt zur A 62, A 8 und B 10.
Das Areal mit einer Größe von gesamt ca. 2 769 m² ist voll- und enderschlossen und hat genug Platz für Anlieferung sowie KFZ-Abstellplätze.
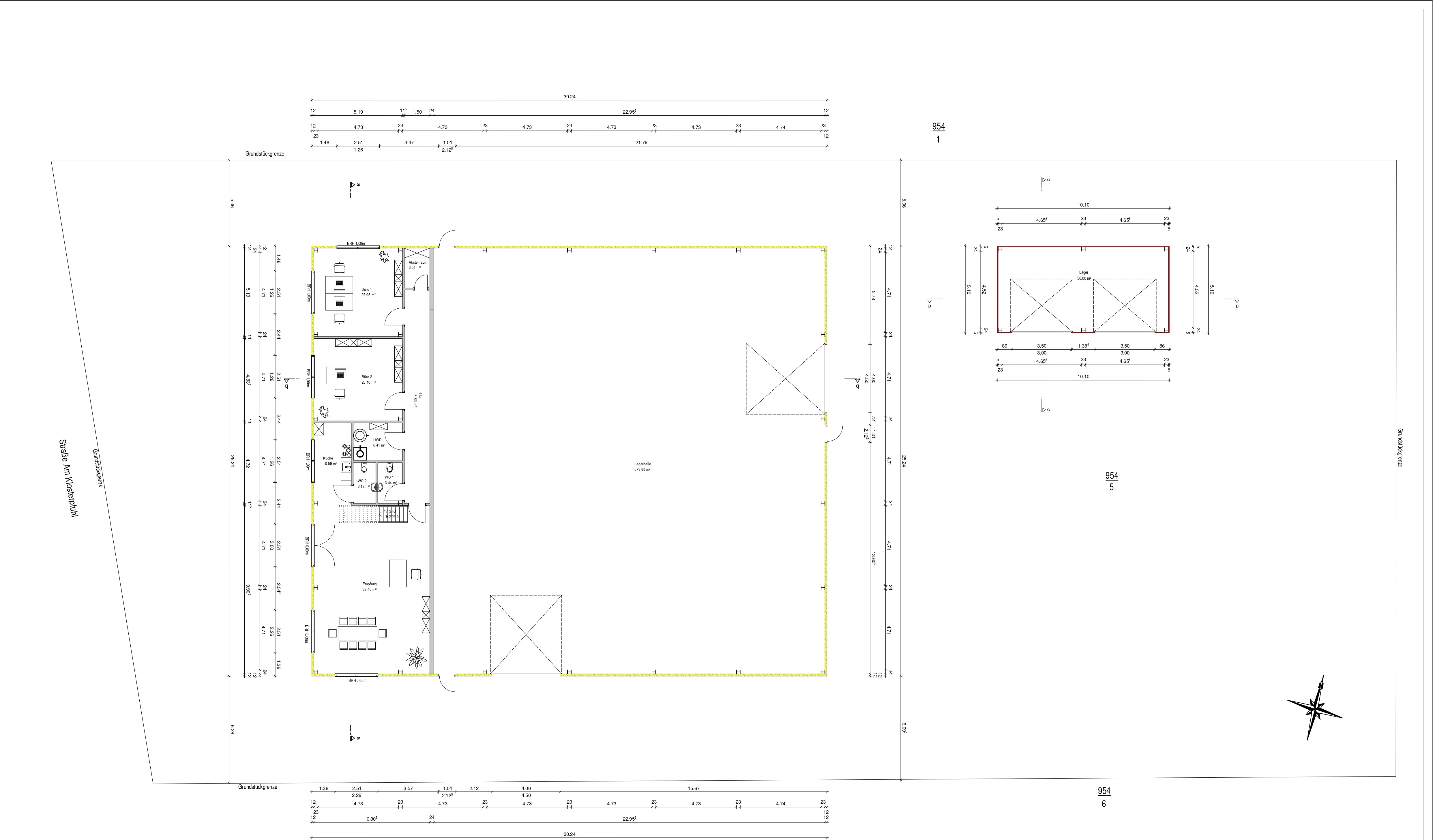
Baulicher Mittelpunkt ist die Lagerhalle. In Stahlskelettbauweise (verschalt) mit Ausmauerung in Porenbeton errichtet, verfügt die Halle bei einem Außenmaß von ca. 23 x 25 Metern über eine reine Hallenfläche von ca. 574 m².
Zwei Rolltore (B 4,00 x H 4,50 Meter) öffnen die Halle beidseitig zum Hof, und machen diese für LKW und Stapler befahrbar.
Eine Bauliche Erweiterung ist möglich!
Im Hauptgebäude befindet sich ein sehr schöner, lichtdurchfluteter Bereich mit Empfang, Ausstellungs- oder Beratungszone, vier Büroräume, einem Hauswirtschaftsraum sowie einer kleinen Teeküche und zwei WCs. Nutzfläche hier gesamt ca. 196 m².
Ausstattung
• Kunststofffenster mit 3 Fach Verglasung
• Wärmepumpe
• Fußbodenheizung in allen Bereichen
• Server Raum
• Topmoderne Elektrotechnik
• Sektionaltore 4 x 4,50 m
• Galeriefläche für Präsentationen oder offene Bürobereiche
• uvm.
Sonstiges
• Wir haben Ihr Interesse geweckt?
Gerne senden wir Ihnen ein ausführliches Exposé mit Informationen zu. Bitte haben Sie Verständnis dafür, dass wir zum Schutz unserer Auftraggeber nähere Informationen zur Immobilie nur an Sie versenden können, wenn Sie uns im Gegenzug Ihre vollständigen Kontaktdaten (Adresse, Telefonnummer, Email) zukommen lassen.
Wir freuen uns auf Ihre Nachricht!
Die von uns gemachten Informationen beruhen auf Angaben des Verkäufers bzw. der Verkäuferin. Die m²-Angaben sind alles CIRCA Angaben.
Für Richtigkeit und Vollständigkeit der Angaben kann keine Gewähr bzw. Haftung übernommen werden. Ein Zwischenverkauf und Irrtum sind vorbehalten.
Energieausweisangaben
- Enerigeausweistyp Bedarfsausweis
- Energiekennwert 87 KWh(m²*a)
- Energieeffizienzklasse C
- Energieausweis erstellt am 15.06.2022
- Energieausweis gültig bis 14.06.2032
- Heizungsart Wärmepumpe
- Befeuerung / Energieträger Strom
Herzlichen Dank für Ihre Anfrage.
Wir werden diese so schnell wie möglich bearbeiten.



